HOME > 外構施工事例 > 外構プラン集
プライベートガーデンの外構プラン
両開き門扉で開口広々な門まわり
多素材で楽しむ外構プラン
固くなり過ぎないクローズ外構
優しい雰囲気の外構プラン
建物とマッチした外構プラン
コンクリート打放しのシンプルな外構
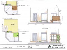
フェンスとGフレームの比較提案図面
石積みベンチのガーデンプラン
緑の多いクローズ外構
敷地を斜めにとった外構プラン
自然石を使った緑豊かな外構