ハイクオリティーなこだわりの「住まい」と「お庭」

HOME外構施工事例外構プラン集 > コンクリート打放しのシンプルな外構

外構施工事例

コンクリート打放しのシンプルな外構

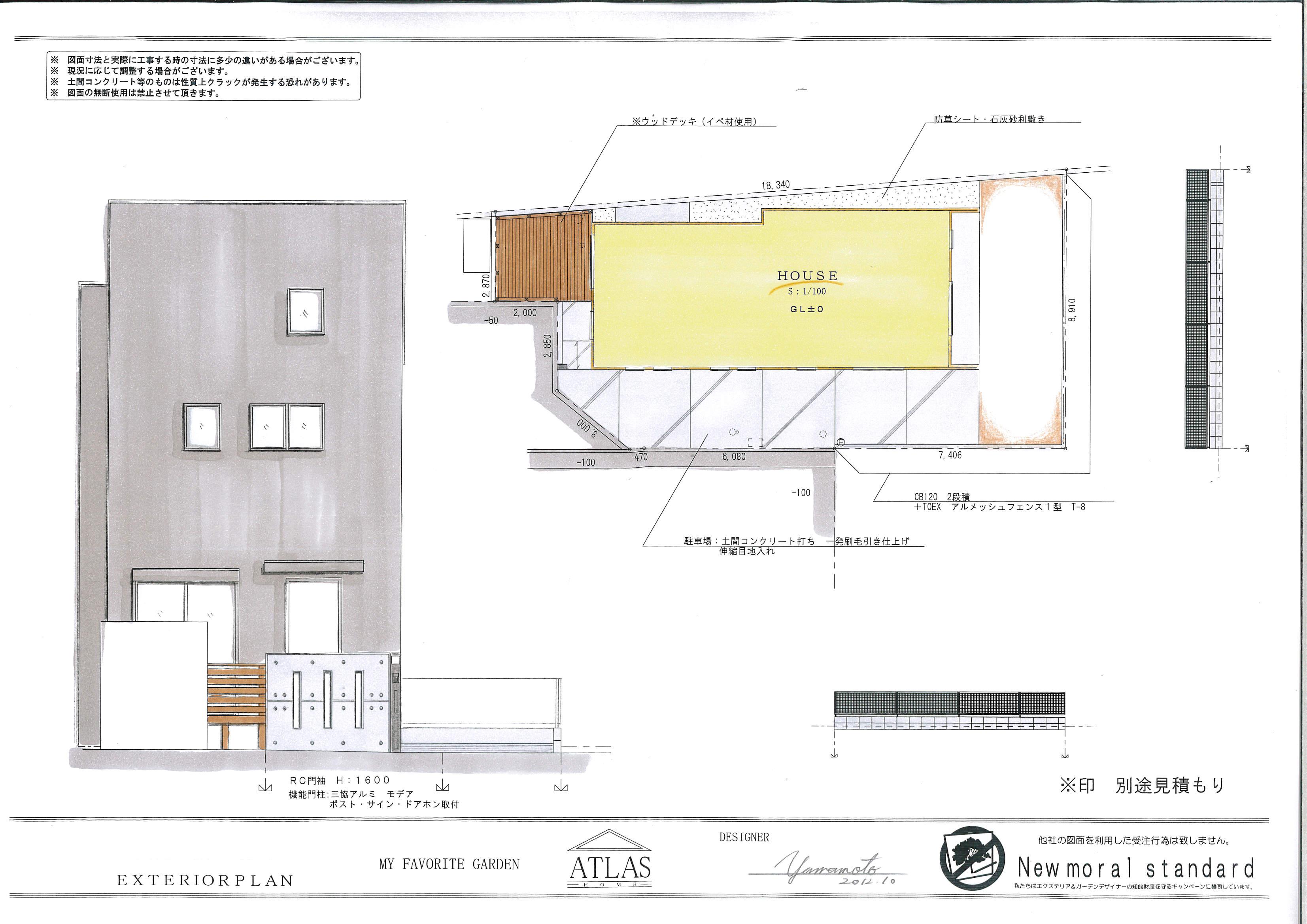
平面図立面図

コンクリートの門袖にスリットを入れて、機能門柱モデアを設置したシンプルな外構図面。

お問合わせはこちら

関連の外構施工事例を見る

一覧に戻る

資料請求 無料見積もり お気軽にお問い合わせください。 フリーダイヤル 0120-64-3331
建物施工事例
外構施工事例
CONTENTS
おすすめ商品
お客様の声
サービス内容
料金について
スタッフ紹介
イベント案内
よくある質問
お仕事の流れ
スタッフブログ
塗装工房
MAP
INFORMATION
会社概要
求人情報
リンク集
個人情報保護方針
サイトマップ
お問い合わせ
for MOBILE
アトラスモバイルでいつでもどこでも最新情報をGet