ハイクオリティーなこだわりの「住まい」と「お庭」

HOME外構施工事例外構プラン集 > 外観シンプルで趣味空間を取ったガーデンプラン

外構施工事例

外観シンプルで趣味空間を取ったガーデンプラン

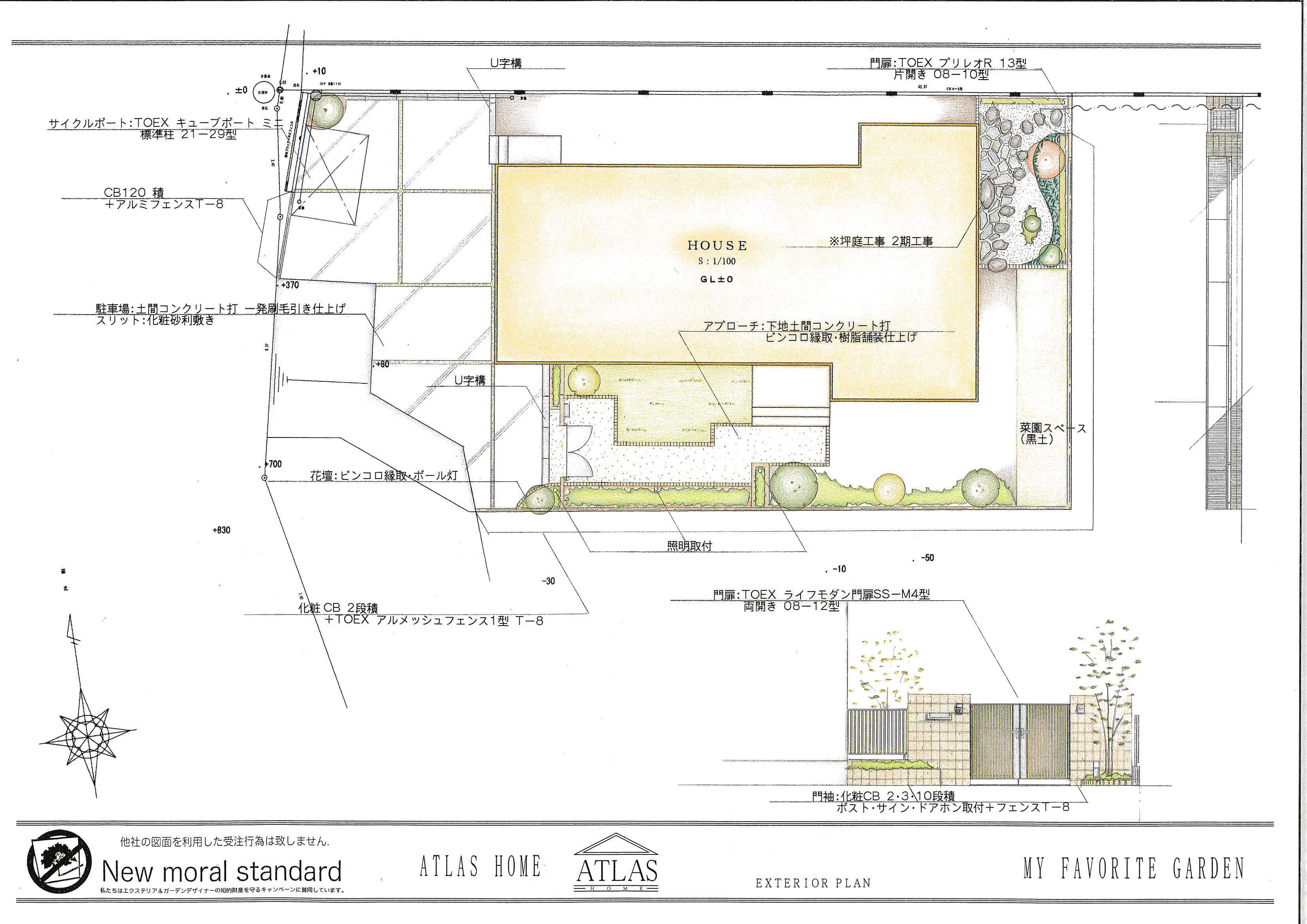
平面図 駐車場から両開門扉、ライフモダンを抜けてアプローチにつながります

駐車場を抜けて両開門扉を抜けると、樹脂舗装のアプローチが現れます。

玄関を横目に真っ直ぐ進むと菜園と坪庭が。

坪庭側からも簡単な出入りが出来るので、急ぎたい時などにとても便利です。

シンプルな外観ですが、敷地に入ると要素がたくさんあるお庭のプランです。

お問合わせはこちら

関連の外構施工事例を見る

一覧に戻る

資料請求 無料見積もり お気軽にお問い合わせください。 フリーダイヤル 0120-64-3331
建物施工事例
外構施工事例
CONTENTS
おすすめ商品
お客様の声
サービス内容
料金について
スタッフ紹介
イベント案内
よくある質問
お仕事の流れ
スタッフブログ
塗装工房
MAP
INFORMATION
会社概要
求人情報
リンク集
個人情報保護方針
サイトマップ
お問い合わせ
for MOBILE
アトラスモバイルでいつでもどこでも最新情報をGet