ハイクオリティーなこだわりの「住まい」と「お庭」

HOME外構施工事例外構プラン集 > 少しアジアンテイストの外構プラン

外構施工事例

少しアジアンテイストの外構プラン

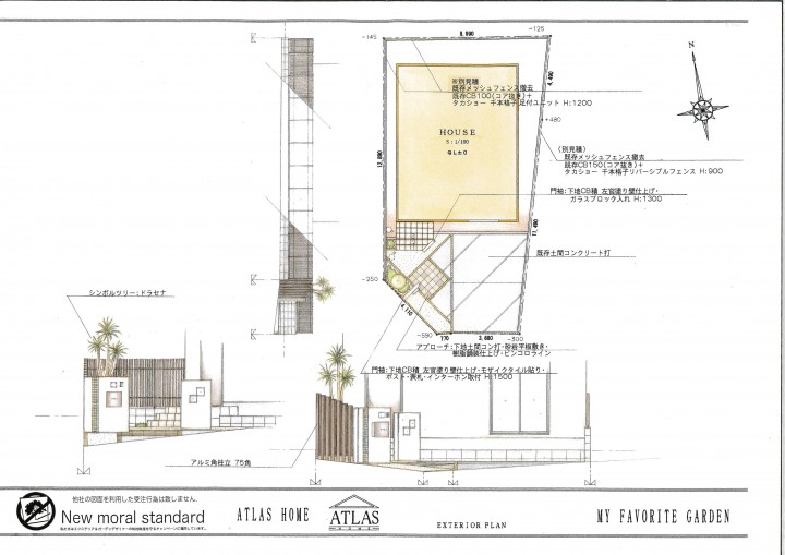
平面図 少し変わった敷地の形なので、空間を少し斜めにとりました。

樹脂舗装に砂岩平板を敷いたアプローチ。

門袖はモザイクタイルを貼ったものと、ガラスブロックを入れ込んだものを両サイドに位置をずらして据えました。、

門袖後ろの角柱の隙間からはドラセナが見え隠れします。上品で少しアジアンな雰囲気の外構になりました。

お問合わせはこちら

関連の外構施工事例を見る

一覧に戻る

資料請求 無料見積もり お気軽にお問い合わせください。 フリーダイヤル 0120-64-3331
建物施工事例
外構施工事例
CONTENTS
おすすめ商品
お客様の声
サービス内容
料金について
スタッフ紹介
イベント案内
よくある質問
お仕事の流れ
スタッフブログ
塗装工房
MAP
INFORMATION
会社概要
求人情報
リンク集
個人情報保護方針
サイトマップ
お問い合わせ
for MOBILE
アトラスモバイルでいつでもどこでも最新情報をGet