ハイクオリティーなこだわりの「住まい」と「お庭」

HOME外構施工事例外構プラン集 > L字門袖の柔らかな門まわり

外構施工事例

L字門袖の柔らかな門まわり

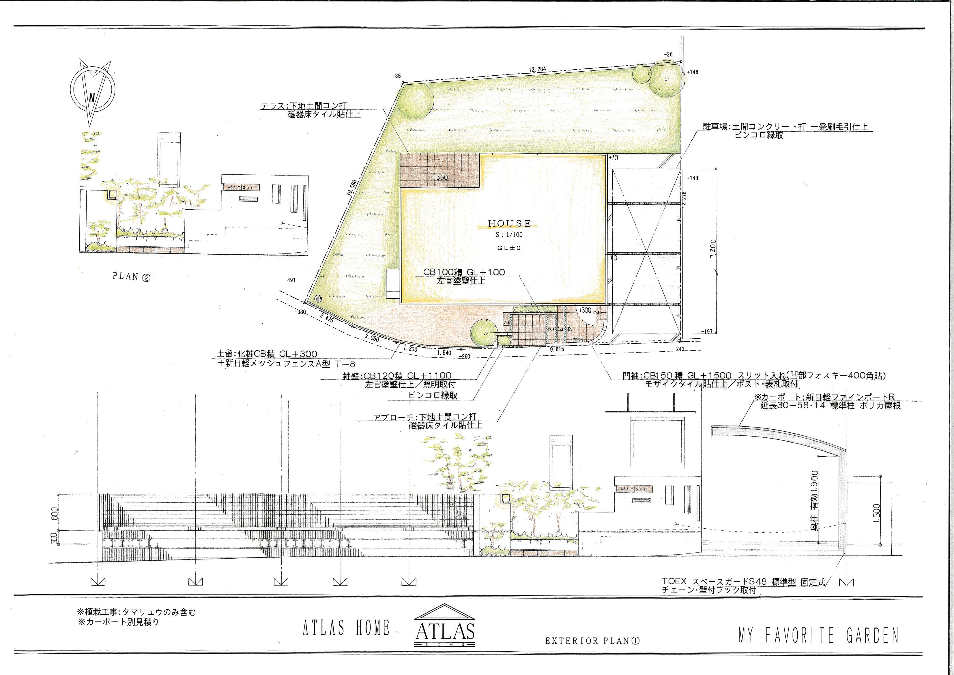
平面図 L字の門袖が出迎える外構プラン

L字の門袖が出迎える外構プラン。

丸みを帯びながらスリットも入っていて、優しげな門まわり。

タイルのアプローチを上がって玄関へ。

駐車場には片側支持のカーポート、ファインポートを設置して、雨でも安心に乗り降り出来ます。

裏手は芝を張り、タイルのテラスで休憩しながら家族のコミュニケーション場として活用できそうです。

お問合わせはこちら

関連の外構施工事例を見る

一覧に戻る

資料請求 無料見積もり お気軽にお問い合わせください。 フリーダイヤル 0120-64-3331
建物施工事例
外構施工事例
CONTENTS
おすすめ商品
お客様の声
サービス内容
料金について
スタッフ紹介
イベント案内
よくある質問
お仕事の流れ
スタッフブログ
塗装工房
MAP
INFORMATION
会社概要
求人情報
リンク集
個人情報保護方針
サイトマップ
お問い合わせ
for MOBILE
アトラスモバイルでいつでもどこでも最新情報をGet