HOME > 外構施工事例 > 外構プラン集 > TYスリーパーで古木を使ったかのようなお庭の外構プラン
外構施工事例
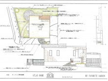
TYスリーパーで古木を使ったかのようなお庭の外構プラン
真っ直ぐなアプローチは出入りの動きに無駄がなく、見せる空間と見せたくない空間を区切ってくれています。
物置をスリットの入った壁やシンボルツリーでさりげなく隠し、アプローチ横の花壇の縁取りを辿れば駐車場へとつながります。
エントランス部分には、自然石乱貼りや古木をリアルに再現したTYスリーパーを飛び石風に敷きました。

関連の外構施工事例を見る
