ハイクオリティーなこだわりの「住まい」と「お庭」

HOME外構施工事例外構プラン集 > アプローチ兼駐車場の外構プラン

外構施工事例

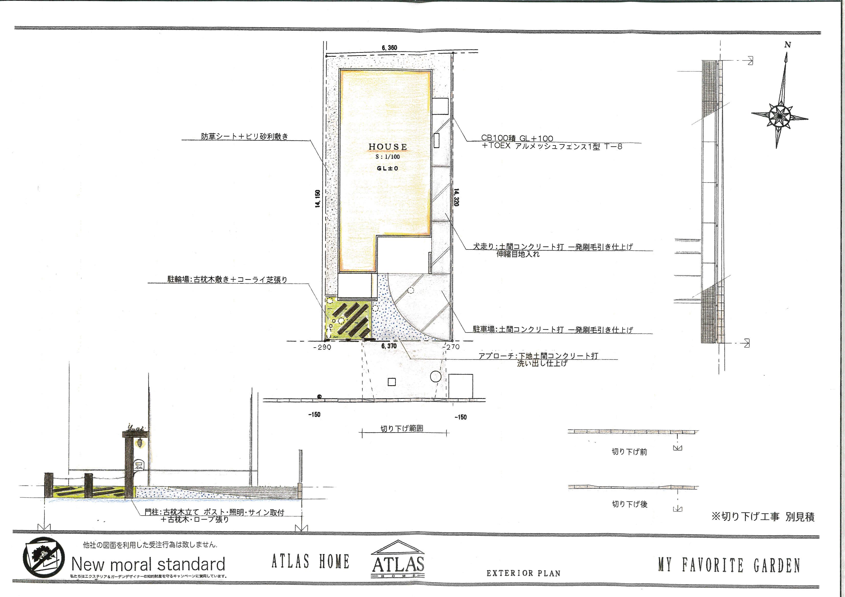
アプローチ兼駐車場の外構プラン

平面図立面図

アプローチ兼駐車場はコンクリートを刷毛と洗出しで仕上げ、駐輪場は芝と枕木で構成した外構プラン。

お問合わせはこちら

関連の外構施工事例を見る

一覧に戻る

資料請求 無料見積もり お気軽にお問い合わせください。 フリーダイヤル 0120-64-3331
建物施工事例
外構施工事例
CONTENTS
おすすめ商品
お客様の声
サービス内容
料金について
スタッフ紹介
イベント案内
よくある質問
お仕事の流れ
スタッフブログ
塗装工房
MAP
INFORMATION
会社概要
求人情報
リンク集
個人情報保護方針
サイトマップ
お問い合わせ
for MOBILE
アトラスモバイルでいつでもどこでも最新情報をGet