HOME > 外構施工事例 > 門まわり > 2枚の門袖に千陶彩&照明でモダンな門まわり
外構施工事例
2枚の門袖に千陶彩&照明でモダンな門まわり
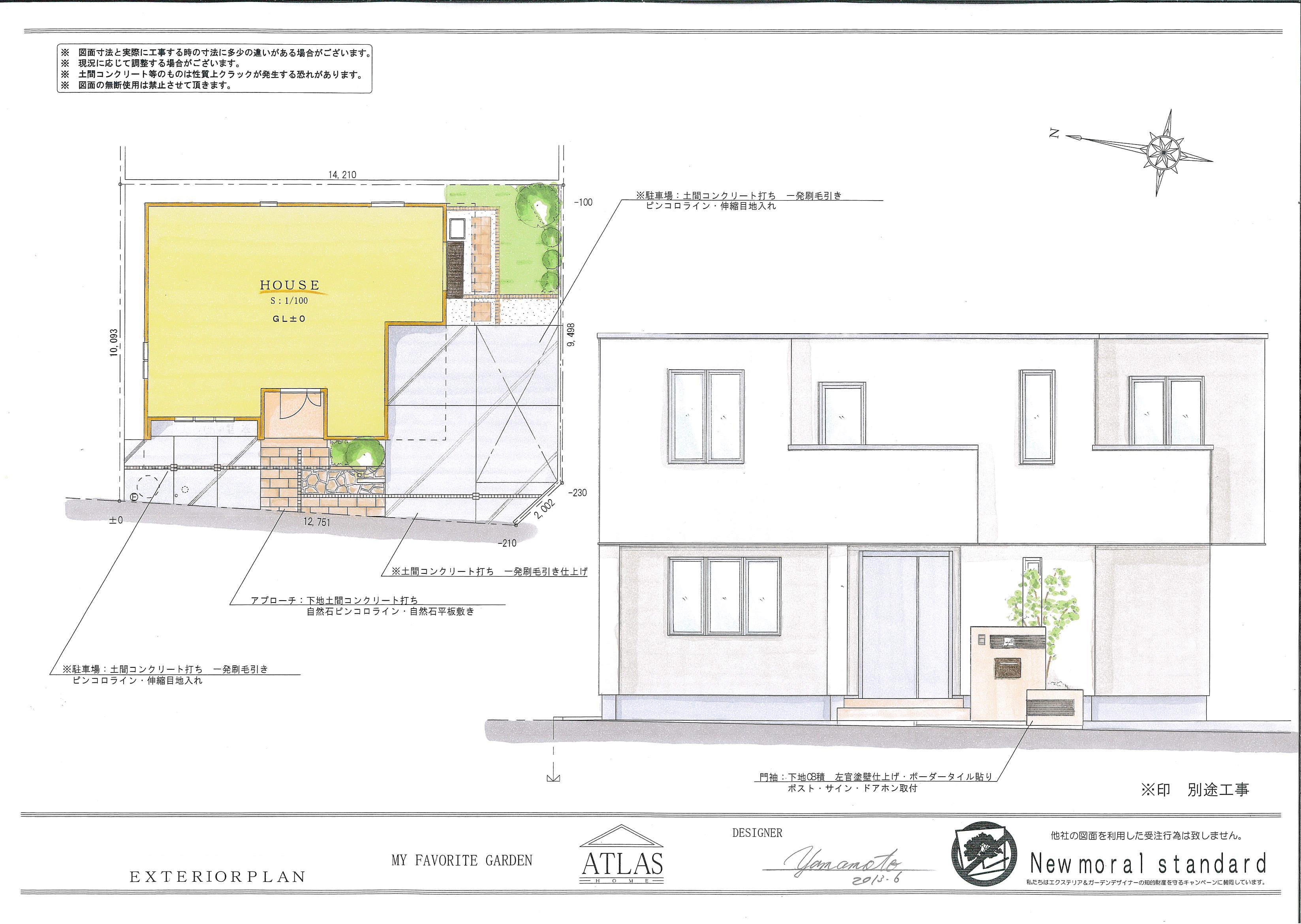
住宅の玄関前からL字に流れる門まわり。
玄関と道との距離が近い為、門袖は玄関すぐ横に設けて、囲わないオープン外構としました。
門袖は2枚、凹みに千陶彩を貼り、門袖裏にヒメシャラの植栽をすることで立体感のある門まわりができました。
重なった門袖の間には照明を埋め込んで、夜間はライトアップの楽しめる玄関周りが完成しました。
オープンな外構ですが、玄関前に門袖があることで、プライベートな部分との空間を区切ってくれます。
建物の色味と塗り壁の白い門袖がマッチして爽やかな門まわり。
門袖のくぼみの千陶彩が空間を引き締めるとともに、アクセントにもなっています。
門まわりを斜めの角度から。
シンボルツリーのヒメシャラが門袖から出迎えます。
建物の壁が背景となって、少し赤い美しい幹の色合いも楽しめます。
門まわりを正面から。
シンボルツリーは建物の隅部をさりげなく隠す役割もしています。
アプローチの床面。
ピンコロと自然石の乱貼りは同じ石材で仕上げました。
メインの門袖。
門袖のくぼみに付けた千陶彩やポストの色味が、空間を引き締めています。
門袖のアクセントはシックな色合いでまとめられていますが、クリアな表札で重たくなりすぎず、全体的なバランスが取れています。
重ねた門袖を拡大。
千陶彩の凸凹とした厚みの差で生まれる影で、門袖に安定感や安心感が生まれました。
-
夜の照明がともるアプローチと門まわり。
重ねた門袖の間に照明を埋め込んであるので、夜間も安心です。
門袖の角のすっきりとした美しさ、
凹みの千陶彩の造り出す影、
ヒメシャラの幹や枝振りがライトアップにより、美しく演出されています。
-
門袖を重ねた事で安定感が出て、きちんとした印象の門まわりに。
照明ひとつで外構の印象は変わります。
照明で門袖や樹木の影も外構デザインに取り入れる事が出来ますよ。
~外構工事作業風景~
出入りが頻繁なアプローチ部分から施工スタート。
アプローチにコンクリートを流し、門袖の下地となるブロックを積んでいきます。
門袖のブロック積みが完成し、アプローチの仕上げをしていきます。
門袖の下地を塗り、アプローチ部分の作業もほぼ完成してきました。
植栽工事。
門袖裏にヒメシャラを植栽。
作業はまだ続く為、樹木の枝はまとめたままにしておきます。
左官塗り壁作業。
アプローチの床面などはほぼ完成しているので、汚れないようカバーを掛け、作業しています。
ポストを設置して、養生します。

関連の外構施工事例を見る
