ハイクオリティーなこだわりの「住まい」と「お庭」

HOME外構施工事例アプローチ > レンガでカーブを描いた樹脂舗装と自然石のアプローチ 平塚市

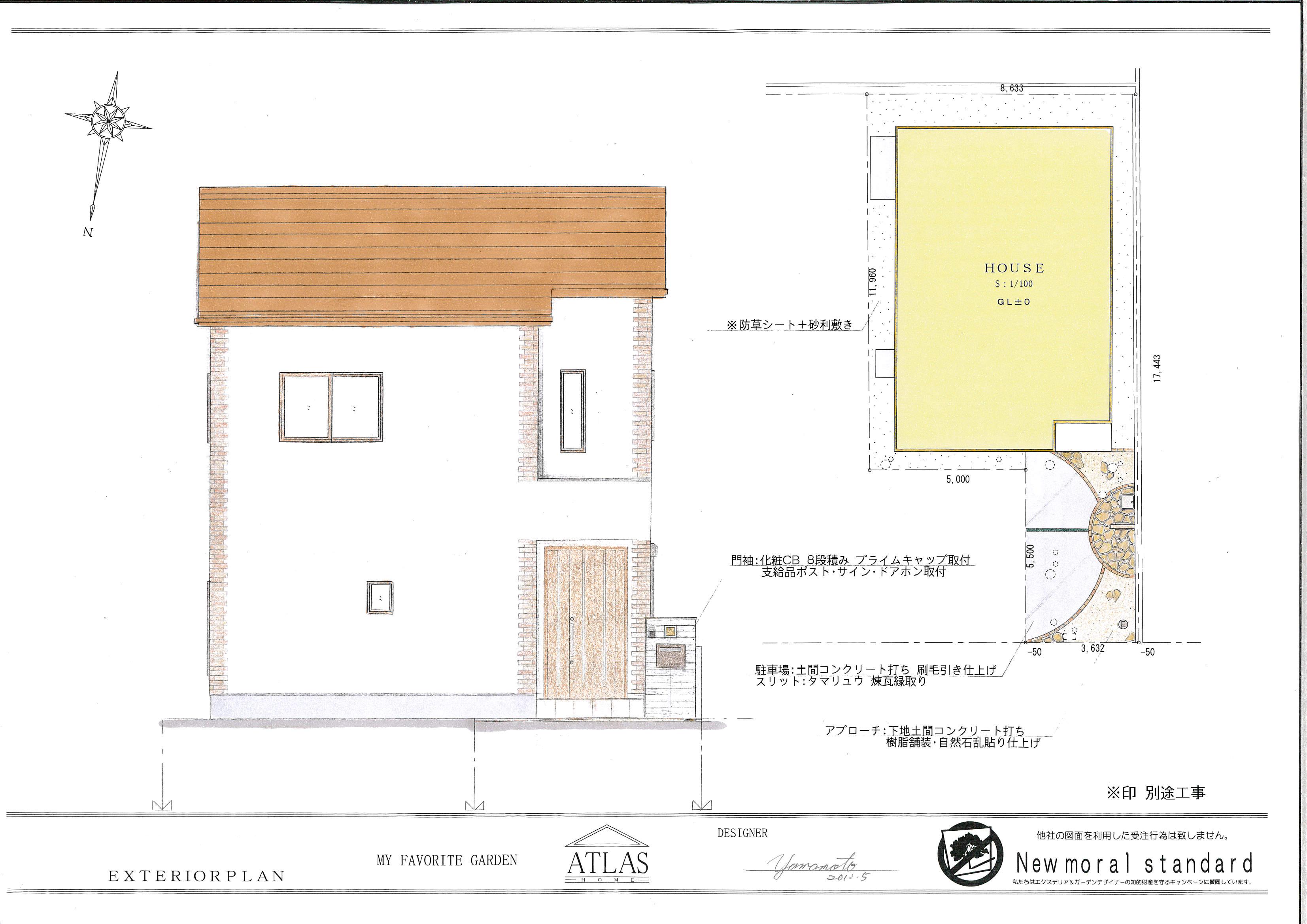
外構施工事例

レンガでカーブを描いた樹脂舗装と自然石のアプローチ 平塚市

電柱を角柱立てで隠して、門袖を奥に造りました。

門袖の周りを自然石で囲んだオープンな外構。

レンガでカーブを描いたアプローチは樹脂舗装と自然石で構成しました。

敷地内の電柱は、玄関ドアと似たテイストのウッド調の角柱立てでさりげなく隠しています。

 

外構図面

SBIC ビザート

お問合わせはこちら

関連の外構施工事例を見る

一覧に戻る

資料請求 無料見積もり お気軽にお問い合わせください。 フリーダイヤル 0120-64-3331
建物施工事例
外構施工事例
CONTENTS
おすすめ商品
お客様の声
サービス内容
料金について
スタッフ紹介
イベント案内
よくある質問
お仕事の流れ
スタッフブログ
塗装工房
MAP
INFORMATION
会社概要
求人情報
リンク集
個人情報保護方針
サイトマップ
お問い合わせ
for MOBILE
アトラスモバイルでいつでもどこでも最新情報をGet